2b
NEWS
PROJECTS
COMPETITION
2025
2023
2021
2020
2019
2018
2017
2016
2015
2014
CENTRE DES COLLECTIONS
LES VERGERS
LOGEMENTS PULLY
COLLèGE DES FICHES
COMPLEXE SCOLAIRE ROMONT
MEP HERMANCE
2013
2012
2011
2010
2009
2008
2007
2005
2003
URBAN
PUBLIC SPACE
ARCHITECTURE
TRANSFORMATION
STRUCTURE
OUTPUTS
ACADEMICS
CONTACTS
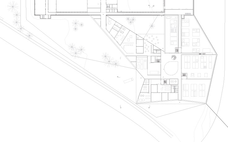
Centre des collections, Affoltern-am-Albis
Team 2b
S. Bender
P. Béboux
C. Becker
S. Genzoni
D. Wasel
Ingénieur conseil
Ingphi, Lausanne
Images
Marco de Francesco, Lausanne
<<
<
idx
/
count
>