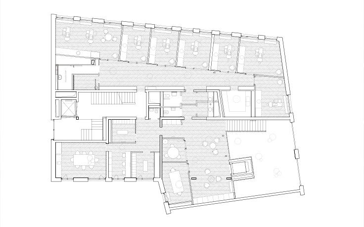
• Clinique dentaire Du Lac
    Morges


    Projet 2018-2020
    Réalisation 2020

    Team 2b
    S.Bender
    Ph.Béboux
    G.Ferretti
    S.Greisinger
    L.Millius
    C.Ngambida

    Direction des travaux
    a.planir, Echallens

    Images 3d
    2b architectes, Lausanne

    Photographe
    Matthieu Gafsou, Lausanne
<< < idx/count >